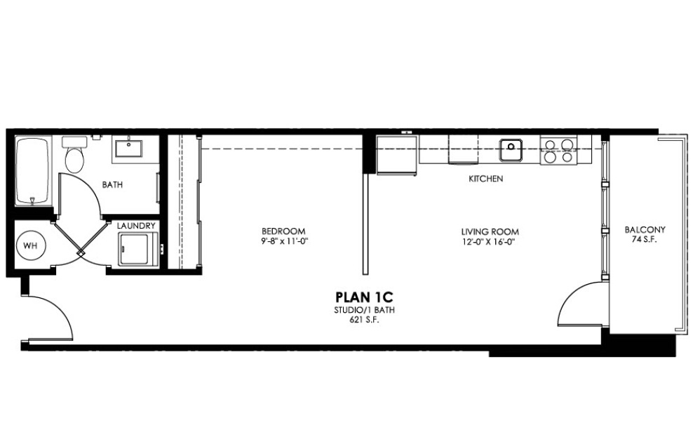
STUDIO

Studio1 bath565 - 775 sq. ft.
Starting at $1,449
STUDIO - Studio floorplan layout with 1 bathroom and 565 - 775 square feet (3D)

Floorplans are artist’s rendering. All dimensions are approximate. Actual product and specifications may vary in dimension or detail. Not all features are available in every rental home. Prices and availability are subject to change. Please see a representative for details.